Semi-Detached House in Las Lagunas
Resale Property: Semi-Detached House in a Very Good Location This…
€360.000
For Sale
€680.000























Resale Property:
Mediterranean-style house located in the lower area of the Los Pacos neighborhood, in the town of Fuengirola, a quiet area with all the necessary services such as shops, schools, playgrounds and a leisure area, just eight minutes from the beach.
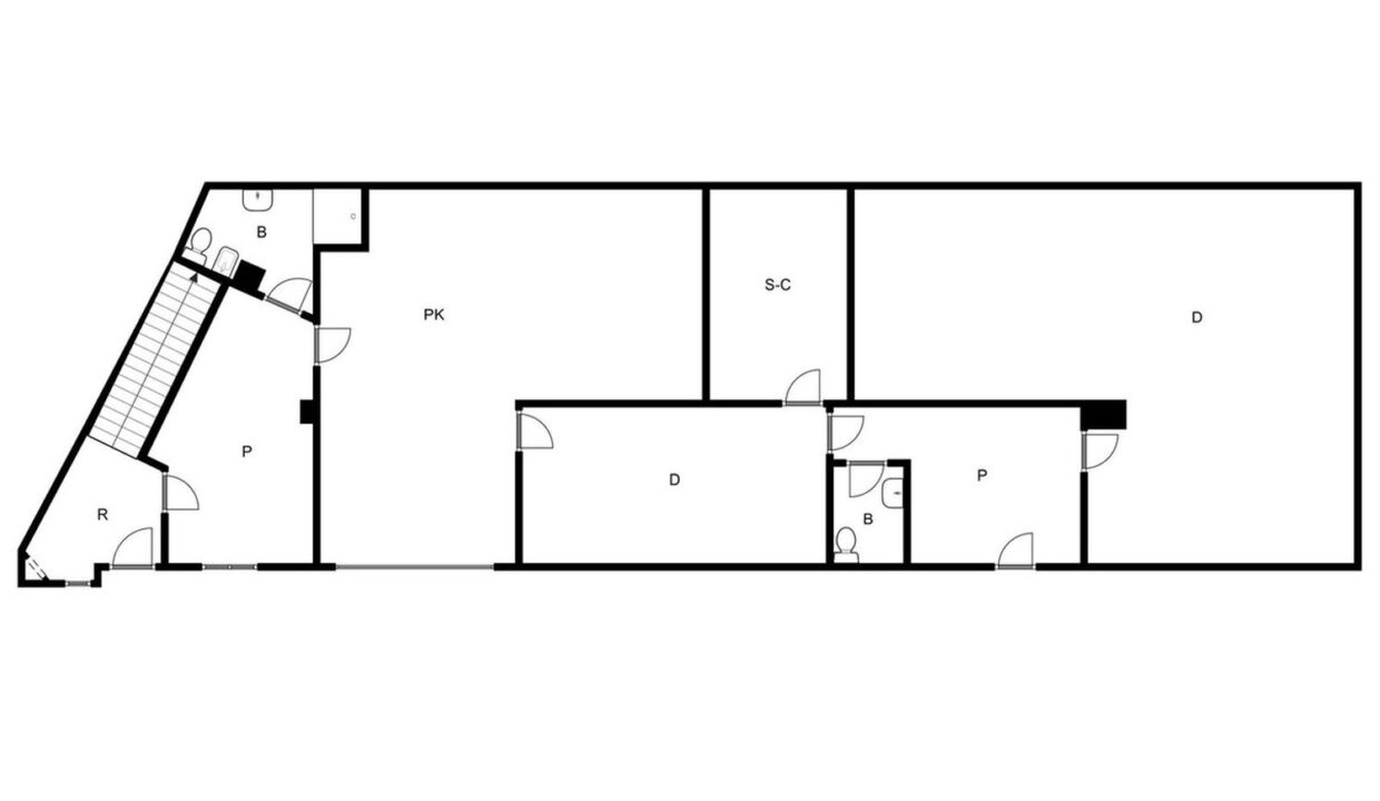
Attached to the house is a commercial space with a separate entrance consisting of a reception area, two offices, a meeting room and a toilet with the possibility of changing the use of a commercial space to residential housing.
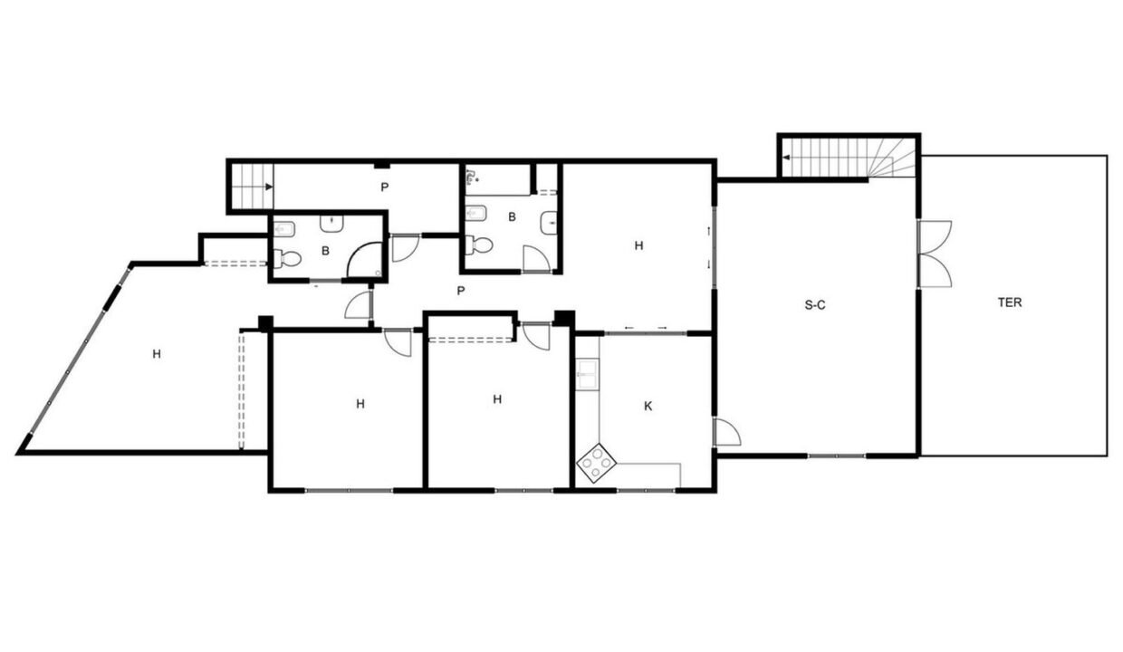
The house is distributed in three heights.
On the ground floor we find an entrance hall, a spacious room with a toilet, and the large garage with a storage area.
On the first floor we find a hall, the main room with an en-suite bathroom, and two bedrooms with a full bathroom, the kitchen, a dining room and a spacious living room with access to a terrace.
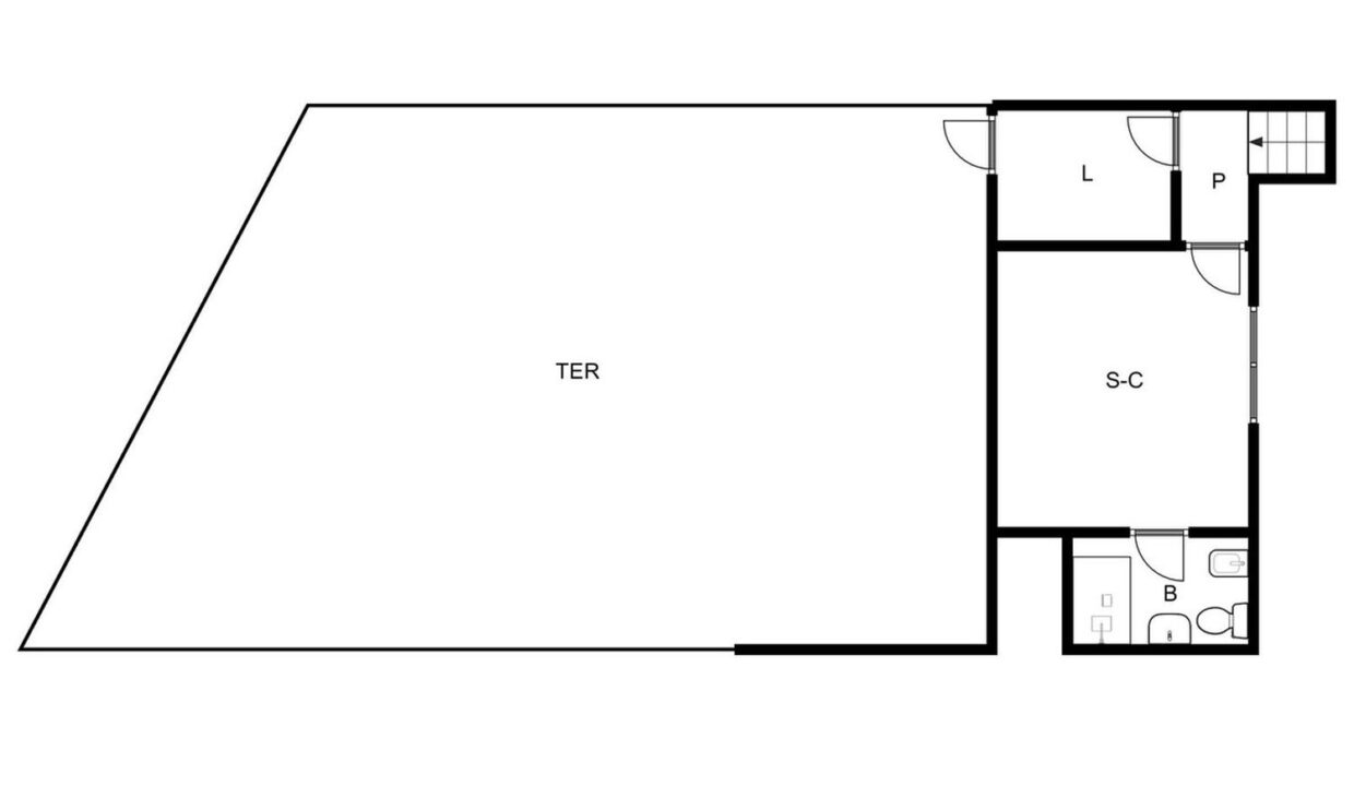
On the top floor we find a bedroom with an en-suite bathroom, a laundry room and a solarium equipped with a barbecue area with extensive views of the sea and the city.
An ideal home for family and business in one of the best areas of the coast.
Semi-Detached House in Fuengirola, Los Pacos Baja
Resale Property: Semi-Detached House in a Very Good Location This…
€360.000
New Development: Eco-Sustainable Villas In Fuengirola Only 3 Villas Left!…
From €556.325
© 2022 All rights reserved
Detached Villa in Estepona